Ufficio, studio con vista ad Arco RIF224-3
- 224-3
COD.
- 200
MQ
CAMERE
- 1
BAGNI
- 3000
EURO
Descrizione
Vi proponiamo un locale commerciale ad alta visibilità nel punto più appetibile del cuore commerciale di Arco, la Via Santa Caterina. Edificio luminoso costruito nel 2003, di gradevole impatto estetico con grandi vetrate terra-cielo, situato a ridosso della nuova bretella di collegamento Arco e Riva del Garda all'uscita Rovereto sud dell'A22.
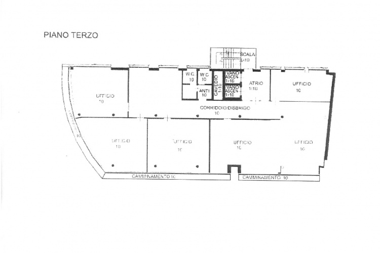
In locazione, 200 mq di terzo piano panoramico (di totali 400) con le seguenti caratteristiche:
- accesso dal retro con scale esterne e due ascensori interni; in realizzazione corridoio di collegamento parcheggio su strada - ingresso del centro;
- l'interno del locale è suddiviso in due vani: un grande ufficio diviso da una parete in vetro e open space con possibilità di ulteriore suddivisione;
- sono presenti antibagno e un WC finestrato.
- si gode di una vista spettacolare, ideale come ufficio di rappresentanza, studio dentistico, medico;
Numerosi i posti auto esterni, ad uso dell'intero centro.
Il centro è in via di riqualificazione con l'apertura di nuove attività, come il supermercato Aldi, sono presenti un bar e uffici, che fanno del centro un punto di riferimento, rinomato e già frequentato da numerosi anni.
Il bacino d'utenza è di circa 60.000 abitanti, oltre a turismo di stagione e giornaliero.
Per ulteriori informazioni, dettagli tecnici e visite vi aspettiamo in agenzia o contattate il 348 6665566.
